FINN dom jednorodzinny
Projektanci: Katarzyna Furgalińska, Łukasz Smolarczyk
Realizacje:
FINN 2/10 FINN 4420
Klient: Prywatny
Fotografie: Supergut Studio

FINN to współczesna interpretacja domku fińskiego*. Energooszczędny budynek o powierzchni zabudowy 81 m², nie tylko inspiruje się jego formą, ale opiera się na podobnych założeniach. Zaprojektowany został w technologii drewnianego szkieletu prefabrykowanego, ale sprawdza się także w technologii CLT, czy w tradycyjnym budownictwie murowanym. Stanowi realną, ekonomicznie dostępną alternatywę dla typowego mieszkania w mieście, wykorzystuje najnowsze technologie i spełnia wszystkie standardy ekologicznego budownictwa mieszkaniowego.

DANE OGÓLNE
Powierzchnia zabudowy: 81,00 m²
Powierzchnia wewnętrzna budynku: 111,50 m2
Powierzchnia użytkowa: ok. 95,00 m² (w zależności od wariantu)
Kubatura brutto: 460 m³
Ilość kondygnacji: 1 + poddasze użytkowe
Wysokość całkowita: 7,93 m
Kąt dachu: 45 stopni




KOMPAKTOWOŚĆ
Relatywnie mała powierzchnia i kompaktowa bryła budynku sprawiają, że jest on racjonalną odpowiedzią na potrzeby mieszkaniowe. Układ wnętrza pomyślany jest tak, aby ograniczać straty powierzchni na komunikację, nadając jej dodatkowe funkcje i wciągając w powierzchnię pomieszczeń. Zabieg polegający na zintegrowaniu elementów ścian działowych, zabudowy meblowej i wyposażenia dodatkowo przyczynia się do maksymalnego wykorzystania dostępnej przestrzeni.
ELASTYCZNOŚĆ
Kwadratowy rzut o wymiarach 9x9 m pozwala na ustawienie budynku na dowolnej działce i optymalne usytuowanie go względem stron świata. Zastosowanie jednego trzonu instalacyjno-sanitarnego i uwolnienie wnętrza od elementów konstrukcyjnych pozwala na modyfikowanie układu pomieszczeń zgodnie z indywidualnymi potrzebami użytkowników.
PROCES BUDOWY
Dom zaprojektowany jest w technologii drewnianego szkieletu prefabrykowanego lub CLT. Wykonanie ścian, stropów i więźby dachowej odbywa się w hali produkcyjnej i trwa od kilku (CLT) do kilkunastu dni (drewniany szkielet prefabrykowany), ich osadzenie na płycie fundamentowej i zmontowanie to zaledwie kilkadziesiąt godzin. Proces budowy jest “czysty”, ekologiczny i przewidywalny, a na jego przeprowadzenie potrzeba około 3 miesięcy.
EKOLOGICZNE MATERIAŁY
Zastosowanie zdrowych, ekologicznych materiałów budowlanych zapewnia stworzenie sprzyjającego mikroklimatu wewnątrz budynku. Ściany i stropy - wykonane z wysokiej jakości drewna świerkowego i wełny mineralnej zamiast styropianu - są w pełni “oddychające” i mają znakomite parametry termiczne.
ENERGOOSZCZĘDNOŚĆ
Dzięki kompaktowej bryle i zastosowaniu “ciepłych” materiałów dom z łatwością odpowiada kryteriom domu energooszczędnego oraz spełnia przepisy dotyczące izolacyjności przegród i rocznego zapotrzebowania na nieodnawialną energię pierwotną, wchodzące w życie 31 grudnia 2020 roku.
Rzut parteru

Przykładowe warianty rzutu parteru

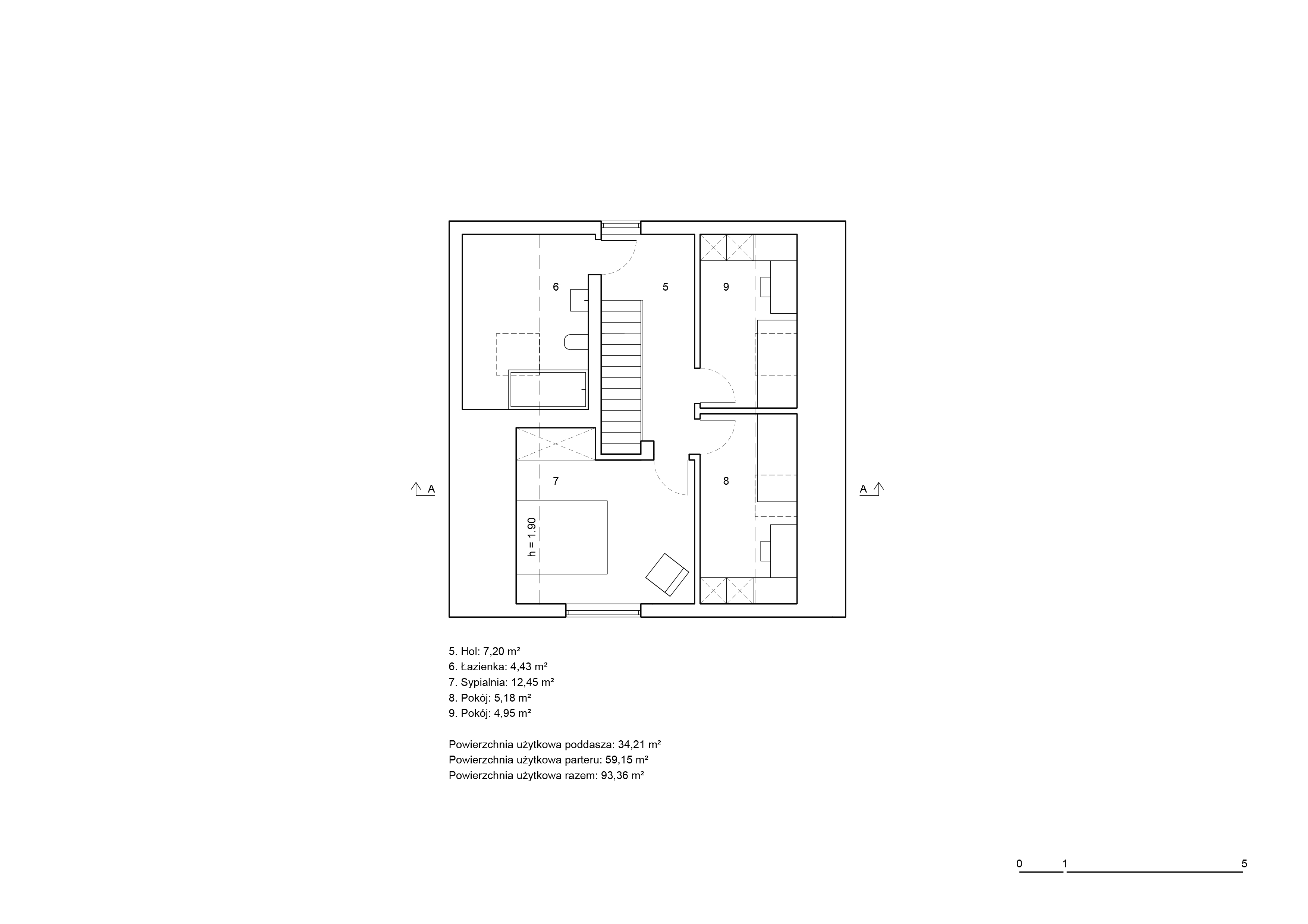
Rzut poddasza

Przykładowe warianty rzutu poddasza

Elewacje

Przekrój A-A

Funkcje dodatkowe

FINN - wersja bez antresoli
Rzut parteru

Przykładowe warianty rzutu parteru

Rzut poddasza

Elewacje

Przekrój A-A

*Domki fińskie – typ drewnianego domu jednorodzinnego występującego w Polsce, przede wszystkim na Górnym Śląsku i gdzieniegdzie w Zagłębiu Dąbrowskim, gdzie stanowią zabytek architektury powojennej. Sprowadzano je głównie z Finlandii (stąd popularna nazwa) za węgiel i koks, by złagodzić tzw. głód mieszkaniowy na czas przejściowy 20–30 lat; niektóre stoją do dzisiaj. /WIKIPEDIA/
